Однокімнатна квартира у ЖК "Простір на 9-й ст. Великого Фонтану"

Однокімнатна квартира у ЖК "Простір на 9-й ст. Великого Фонтану"
ціна: 49500 $

Характеристики
Комнат
1
Общая
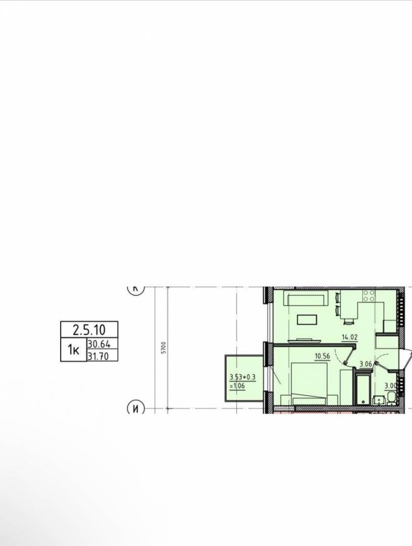
32 м2
Жилая
11 м2
Этаж
5
Этажность
9

На мапі

Опис

Продається світла та затишна квартира площею 32 м² у Приморському районі, біля 9-ї станції Фонтану. Зручне планування включає кімнату 11 м², простору кухню 14 м² та балкон-терасу 4 м². Квартира з приємним краєвидом на спокійний приватний сектор у напрямку площі Толбухіна. Відмінний варіант для проживання чи здачі в оренду, в районі з розвиненою інфраструктурою та зручною транспортною доступністю.