Однокімнатна квартира у ЖК Гагарінський
Однокімнатна квартира у ЖК Гагарінський
ціна: 95000 $
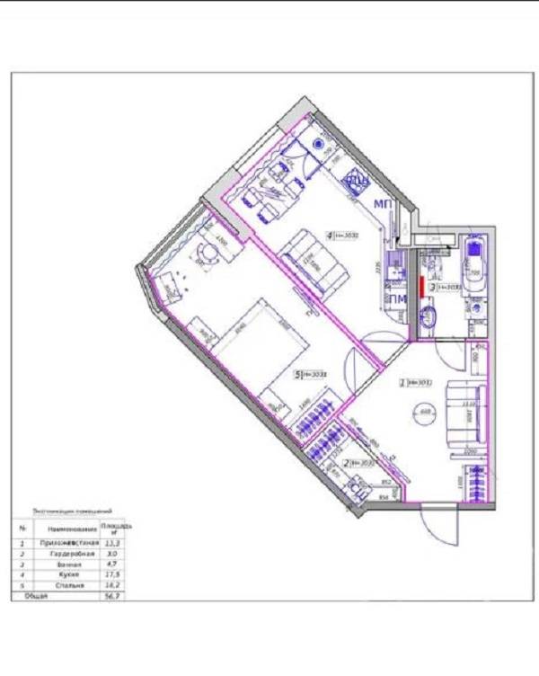
Характеристики
Комнат
1
Общая
56 м2
Жилая
23 м2
Кухня
17.5 м2
Этаж
13
Этажность
23
Контакти менеджерів з продажу
-
вул. Преображенська, 49/51, м.Одеса
Запит інформації по об'єкту
На мапі

Опис
Продам 1-кімнатну квартиру в новому житловому комплексі. У квартирі зроблено якісний дизайнерський ремонт. Велика світла кімната, простора кухня, санвузол. Металлопластикове скління, броньовані двері. Відмінна інфраструктура, гарна транспортна розв'язка. Поблизу є: супермаркети, кіоски, магазини, аптека, школа, дитячий садок, ресторани, кафе. Оперативний показ.













